Willkommen zu einer seltenen Gelegenheit, ein außergewöhnliches Grundstück in einer der begehrtesten Lagen Dortmunds zu erwerben. Dieses Grundstück bietet eine perfekte Kombination aus Ruhe, Naturnähe und hervorragender Anbindung an das Stadtzentrum.
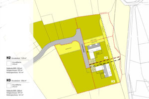
Grundstück H2:
Größe: 1125 m²
Bebauungsstatus: Bauvoranfrage eingereicht
Bebauungsplan: Vorhanden und Baurecht gesichert
Besonderheiten: Inklusive Erschließungskosten, umgeben von altem Baumbestand
Dieses Grundstück ist ein wahres Filetstück in bester Lage von Dortmund-Lücklemberg. Es befindet sich im ruhigen Hinterland, umgeben von einem prächtigen alten Baumbestand. Der aktuelle Eigentümer hat eine Bauvoranfrage eingereicht, und der Bebauungsplan stellt sicher, dass das Baurecht gesichert ist. Diese Bedingungen bieten Ihnen die perfekte Grundlage, um eine außergewöhnliche, hochwertige Immobilie zu errichten.
Zusätzlich steht ein weiteres Grundstück in der gleichen Straße zum Verkauf:
Grundstück H3: 1256 m² für 1.300.000,00 Euro



















